Location Appartement / BEAU T3 de 66m2 avec 2 terrasse + jardin
Description
À LOUER T3 – APPARTEMENT NEUF À CERGY
Photos non contractuelles !
Résidence « Les 3 Fontaines » – 11 avenue des 3 Fontaines, 95000 Cergy
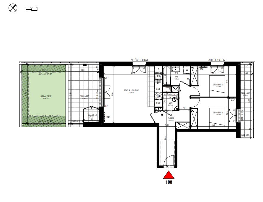
Venez découvrir cet appartement neuf de type T3 de 67 m² dans un cadre moderne et confortable. Situé au 1er étage avec ascenseur, cet appartement comprend 2 chambres, une salle de bain, WC ainsi un séjour lumineux avec cuisine ouverte, créant un espace convivial. Il dispose 2 terrasses de 18m² et d'un jardin privatif de 21m² pour profiter de l'extérieur.
Un cellier sur la terrasse et 2 places de stationnement en sous-sol sécurisé complètent ce bien .
Ce bien est équipé d'un chauffage et eau chauds collectifs au gaz et respectent les dernières normes énergétiques (RT 2012), garantissant confort et économies d'énergie.
Un emplacement idéal:
• À 2 min à pied du centre commercial Les 3 Fontaines
• Gare RER A Cergy Préfecture accessible en moins de 5 min à pied
• Accès rapide à l'A15 et à la N184 vers La Défense et Paris
• Restaurants, services, cinéma, médiathèque, et pôles universitaires à proximité immédiate
Écoles et services:
• Université de Cergy, école de commerce, établissements scolaires et crèches accessibles à pied
• Espaces verts, parcours piétons, et bords de l'Oise à quelques minutes
Contactez-nous dès maintenant !
Les informations sur les risques auxquels ce bien est exposé sont disponibles sur le site Géorisques : www.georisques.gouv.fr
- Diagnostic de performance énergétique : B
- Indice d'émission de gaz à effet de serre : B
- Provisions pour charges avec régularisation annuelle : 296 €
- Honoraires TTC à la charge du locataire : 868.27 €
- Dont honoraires TTC réalisation état des lieux : €
- Dépôt de garantie : 1458 €
Nos honoraires d'agence suivent l'encadrement légal imposé par la loi Alur
